景怡花園多功能娛樂閣樓家庭影院
2022-09-25
一.基本情況介紹

基本情況介紹
實施方類別:影音設計師
案例類別: 智能多功能娛樂室
位置及周邊概括性描述:上海松江區景怡花園
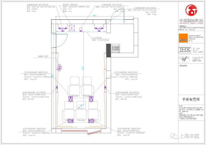
空間信息:長7.1×寬3.5m×高3.3m,約22㎡
用戶使用需求:業主想要一個獨立影音娛樂室,包含智能化操作,經過商議,選定閣樓
二.器材設備列表

前三音箱:MK LCR780*3
側后、天花環繞:大地震EWS800
低音炮:大地震FF12
投影機:BENQ 4K8917M
幕布:臺灣韋佰羅尼135寸畫框透聲幕
三.影院構建過程,特殊設計以及聲學
這個別墅業主裝修花費接近三年時間,各個細節都要親自審查,對于我們也是一樣的,各個方面我們團隊也是親力親為,客戶一直想在家里做一個地下影院,但是空間不夠用,經過多次溝通之后決定在閣樓做一個多功能娛樂廳

1.空間規劃
經過現場勘查,影音室的寬度是3.32米,長度6.93米,高度2.8米,這個長方形空間滿足了家庭影院THX的標準,但是美中不足的是空間太長,所以在前墻做了60公分的假墻。

一個是讓影院的寬敞比例控制在1:2以內,盡量不做過多的聲學處理,減少駐波
卡拉OK音響和影院音響可以***的嵌入假墻之中,減少音響線路的損耗,讓熒幕做的更大,整體空間更加簡潔

2.音響搭配
整體影院按照7.1.2全景聲來設計,音響系統采用的是美國MK sound的THX認證影院前三是MK LCR780,是MK產品系里面***銷量***大的一款,再配合大地震***銷量***好的12寸超低音,可謂強強聯手,美系爆發力體現的淋漓盡致。

3.聲學和光學設計
由于兼容卡拉OK和家庭影院兩套系統,我們沒有做很復雜的聲學的設計,墻面采用的是錯層造型配合一公分厚的軟包設計,滿足影院吸音的同時,天然的錯層設計,對聲場的擴散也有較大幫助,搭配led條形燈,使得整個影院空間更有氛圍感。

閣樓頂面的半弧型設計,我們結合層高與造型,我們設計了穹頂星空桿,和普通星空頂不同,增添整體空間的包圍感和溫馨度。

4. 特殊設計
1.影音室后方有一個陽臺,采用隔音玻璃和厚窗簾的解決方案,解決了采光與影音空間的出入。

2.設備柜我們巧妙的設計在影音室旁邊儲存空間,不占地方,配合影院智能中控系統,電影卡拉OK一鍵切換,非常方便。

四.客戶使用感受和體驗

家里面所有的裝修與選材都是大任總在對接,***智能影音這一塊,是小任總在親自把關,用客戶的話:專業的人做專業的事,誰在用,誰負責,家庭影院年輕人玩得更多,也是情理之中。
后面我們又給客戶做了一次精細調試,小任總對效果非常滿意,還為我們的貼心服務點贊。
掃描二維碼分享到微信