01.別墅家庭影院
我們剛剛開始接觸這個客戶時,客戶家里要求我們改裝別墅影院案例。客戶是從事教育設備領域的,別墅里面以前都是小孩自已娛樂,自己DIY買了一個電動幕布,搭配了一個便攜式投影,效果不盡人意,后面找我們來給他整體的規劃設計,在盡量不破壞裝修的情況下,來給他設計一個改裝家庭影院的解決方案。 改裝前

改裝后

經過我們設計師的對于房型和實地的考察后,我們采用了合理的5.1.2的系統,在滿足杜比和dtsx的前提下,在數十年都不會落伍,又適合客戶家基本的需要和娛樂,除了影院方面業主要求也要滿足唱歌需求,平時給小孩子娛樂的同時,在接待客人來家里又能多一個娛樂系統,特別是現在的疫情反反復復,影院和卡拉ok也不會讓客戶在家里不會那么無聊,安裝完成后客戶對于改造非常滿意!后面又邀請我們給他們做公司展廳的影院
02.會所家庭影院
客戶的展廳位于周浦,要求我們設計出要比一般的商業影院效果震撼,客戶來了以后能夠有耳目一新的感覺以外,要滿足整體隔音要求,不能打擾其他的公司辦公。還有在平時能夠播放公司的宣傳片,這就對設備和裝修的選擇,還有對設計師的設計思路有著很大的考驗 經過我們設計師的專業實際考察和設計要求的結合,
我們開始落實方案
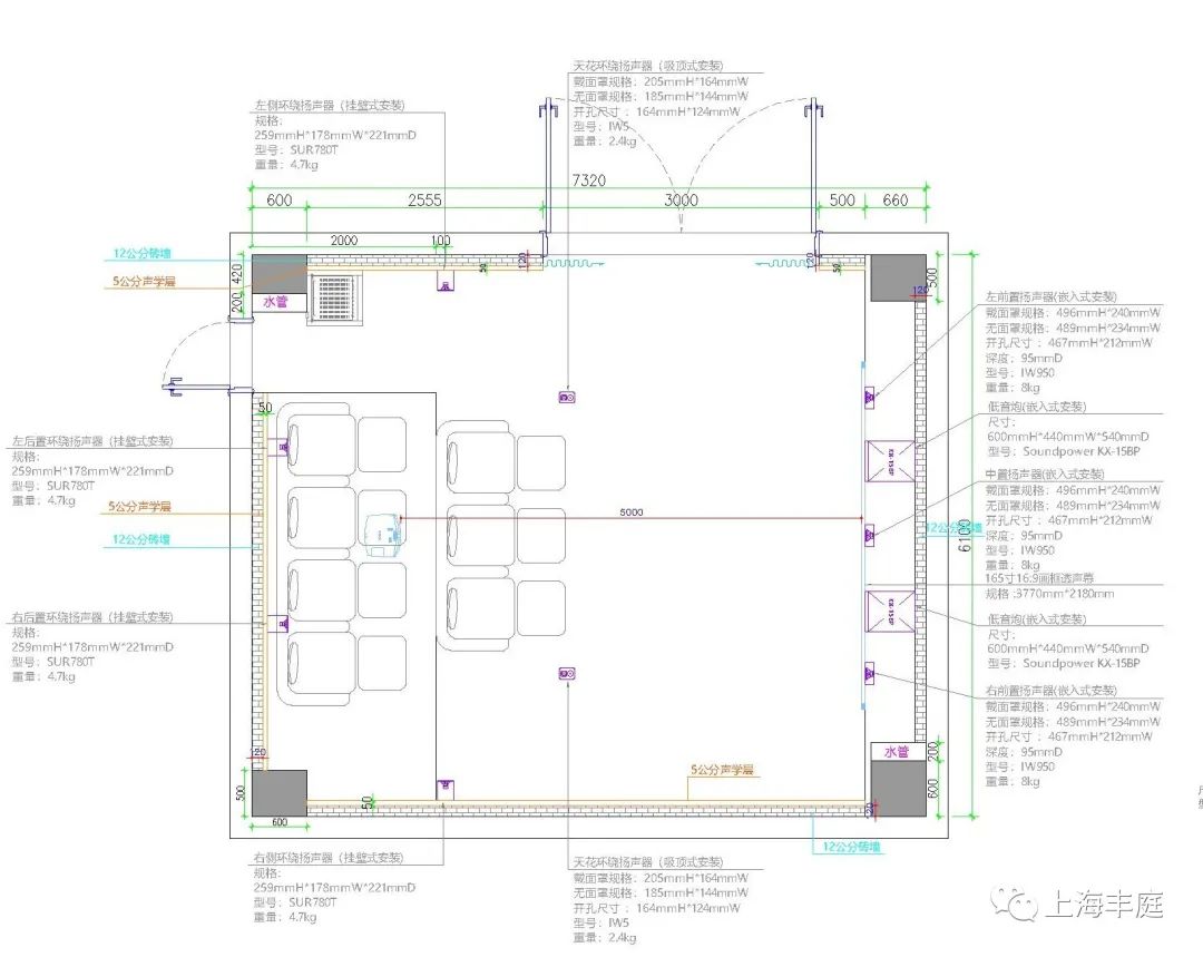
本案例所使用的設備: 投影機:優派(ViewSonic)TX500
幕布:焦點THX認證4K 3D高清微孔透聲/165英寸
AV放大器:日本DENON天龍 AVR-X4700H
前三聲道音箱:M&K Sound IW950
側后環繞音箱:M&K Sound SUR780T
天空聲道音箱:M&K Sound IW85
低音炮:Soundpower聲威 KX-15BP*2
設計思路:

影音室整理空間是5.3*7.3米的空間,層高也非常高,很適合做私家影院,因為是公司展廳所以設置兩排沙發,做了抬高以后不管是接待客人看電影還是介紹公司都是可以多人觀看,但是也不會擁擠,符合觀看角度,不會長時間觀看后出現頭昏腦漲的情況。



在對于裝修設計時兩面都是純玻璃,在隔音這一塊我們增加了難題,為了滿足隔音要求,我們采用了不同介質的材料,外面是玻璃,然后在玻璃外加了厚密度的隔音棉,整體做了一層隔音板,隔音板外敷了一層隔音氈,然后是一堵實墻,實墻外是龍骨、吸音棉加聚酯纖維吸音板。 影院我們按照杜比全景聲7.2.2能做整體規劃的。

為了整體簡潔性,影院的前三采用的是嵌入式的設計。環繞用的是美國mk sound三向發聲環繞技術,讓整體后置聲場的包圍感會更強,配合mk sound嵌入式天花喇叭,三維立體感也更強。
現場搭配的是165寸透視幕設計,由于幕布較大,考慮到畫面的實際效果,投影機我們采用的是優派激光光源投影機,影音室的整體色系都以灰色為主。

影音室整體墻面都采用的是聚酯纖維吸音板搭配金屬卡條設計,為了滿足整體影院的層次感,頂面做了三層吊頂設計,地面做了2排沙發規劃;從燈光上,我們也考慮低位,中位到高位的燈光設計,高位的筒燈直接照明,與高中低位的反射式燈光輔助照明,相得益彰,層次分明。
在調試的時候在30-40HZ這個頻段有一定駐波,把低音炮移到外面來,整體效果改善比較明顯,客戶也請了好幾個朋友和老發燒友一起來看,整體效果都很滿意!

本案設計師:周斌

個人簡介:影音大斌哥,
2008年投身影音行業,從業14年,參與設計的私家影院案例超過2000個,關注客戶的生活態度和內心的細微感受,在設計上,運用已有的專業積累給客戶做一對一定制影院解決方案
行業證書:
2015年THX HT2認證工程師
2018年CEDIA沉浸式影院認證工程師
2018年CEDIA 家庭影院房間設計師
主要獲獎案例: 2015《數智音頻》
獲獎案例:天堂影院誕生記
CEDIA 2020亞太區獲獎案例:上海豐庭體驗廳 2021
《影音中國》獲獎案例:穿越星河遇見SensaSound專業影院
周浦公司私人會所影院案例
作 者:豐庭智能
客戶的展廳位于周浦,要求我們設計出要比一般的商業影院效果震撼,客戶來了以后能夠有耳目一新的感覺以外,要滿足整體隔音要求,不能打擾其他的公司辦公。還有在平時能夠播放公司的宣傳片,這就對設備和裝修的選擇,還有對設計師的設計思路有著很大的考驗
掃描二維碼分享到微信